Гидрораспределитель DPHI-2713-X… ATOS
✓ Сертифицированное оборудование
✓ Гарантия надежной эксплуатации
✓ Контроль качества на каждом этапе
✓ Современное оборудование
✓ Быстрая отгрузка
Основные технические данные
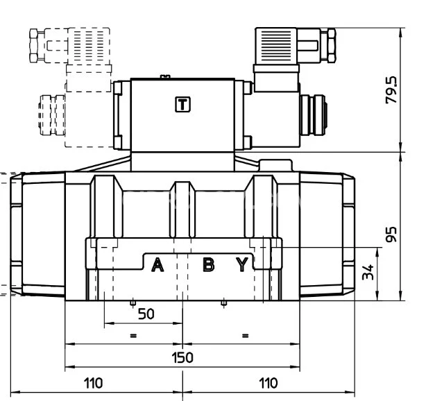
Условный проход : 16мм
Рабочее давление: 35МПа
Пропускная способность: 300л.
Напряжение: 12DC, 24DC, 110AC, 220AC
Тип монтажа: модульный (стыковой, плиточный)
Масса : 16,5 кг
Схема распределения потока рабочей жидкости:


Гидрораспределители каскадного типа DPHI, DPHU и DPHO, трех- или четырехлинейные и двух- или трехпозиционные, соответствуют пилотам DHI, DHU, DHO (аналогам отечественных гидрораспределителей 1ре6, ве6, пе6) и имеют условный проход 10, 16, 25 и 32 мм. Эти устройства предназначены для использования в гидравлических системах таких приложений, как станки, автоматизированные и роботизированные линии. Управление осуществляется с помощью электромагнитных пилотных распределителей:
- DHI для электропитания переменным и постоянным током;
- DHU для систем на постоянном токе с улучшенными характеристиками;
- DHO для постоянного тока с высокими показателями.
Все движущиеся элементы надежно защищены, смазаны и погружены в масло. Оболочковое литье изготовлено на автоматизированных линиях с использованием термической очистки. Конструкция внутренних каналов оптимизирована, что обеспечивает большой проход для слива и снижает потери давления. Также возможно взаимозаменять золотники в широком диапазоне конфигураций. Распределители DPHI и DPHO можно оснастить специальными устройствами для настройки времени переключения.
Стандартные электронные разъемы соответствуют современным требованиям к электрическим цепям, а катушки имеют абсолютную герметичность (класс Н). В дискретных распределителях DPHI и DPHU от компании ATOS замена катушек может выполняться без применения инструментов. Их прочная конструкция позволяет использование на открытом воздухе.
Монтажная поверхность гидрораспределителей каскадного типа DPH... соответствует стандарту ISO 4401 и имеет размеры 10, 16, 25 и 32. Максимальные значения расхода достигают 140, 300, 650 и 1000 л/мин для условных проходов 10, 16, 25 и 32 мм соответственно, при этом максимальное давление для всех моделей данного типа гидрораспределителей составляет до 350 бар.