Гидрораспределитель RH06.041.220 (110)/50AMA CAPRONI
✓ Сертифицированное оборудование
✓ Гарантия надежной эксплуатации
✓ Контроль качества на каждом этапе
✓ Современное оборудование
✓ Быстрая отгрузка
Основные технические данные
Условный проход : 6мм
Рабочее давление: 35МПа
Пропускная способность: 60л.
Напряжение: 12в., 24в., 110в., 220в., 380в.
Тип монтажа: модульный (стыковой, плиточный)
Масса : 1,45 кг с одним эл.магнитом, 1,95 кг - с двумя эл.магнитами
Схема распределения потока рабочей жидкости:


При подготовке и установке гидрораспределителя необходимо следовать определённому порядку. Сначала его нужно разконсервировать, что включает в себя снятие защитной прокладки и протирание стыковых плоскостей и подводящих отверстий чистой тканью, смоченной в бензине или другом растворителе. Установка гидрораспределителя осуществляется на нижней стыковой плоскости, которая должна быть должным образом уплотнена резиновыми кольцами. При этом возможно крепление непосредственно на панели станка или на междинной плите, которая также должна быть уплотнена и надёжно закреплена.
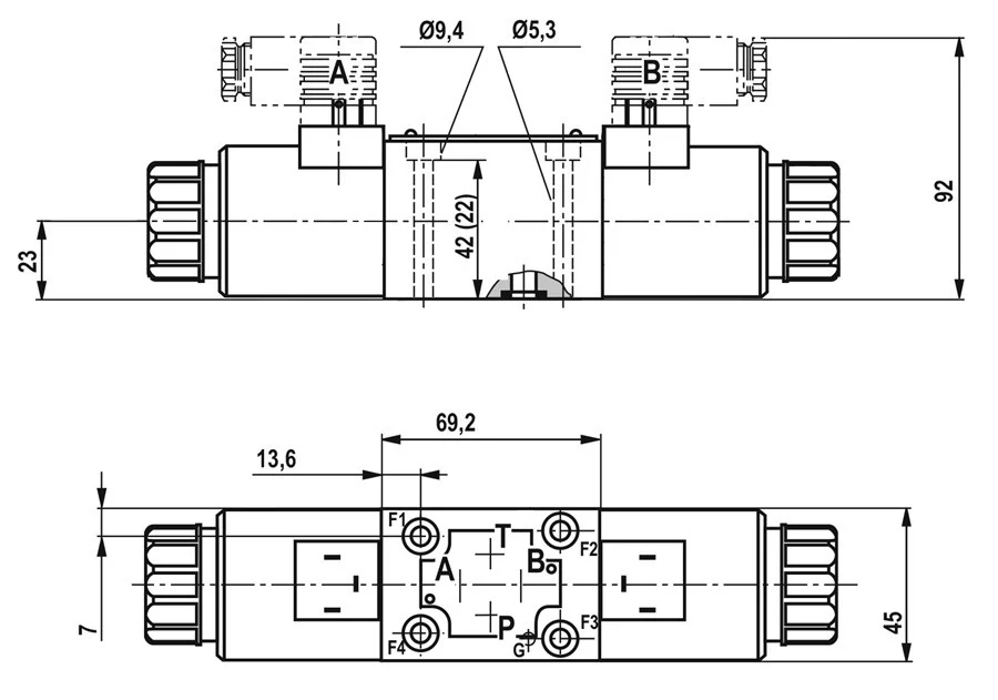
Монтажная поверхность панели должна соответствовать требованиям шероховатости до Ra 1,25 и неплоскостности не более 0,01/100 мм. Для крепления гидрораспределителя используются четыре винта: M5x30 для модели RH06 и M6x40 для RH10, согласно стандарту DIN 912-10.9. Затяжка производится с моментом 6...8 Nm для модели НОб и 11...14 Nm для RH10. Во время установки гидрораспределителей, не оборудованных возвратной пружиной и фиксирующих золотник, следует обеспечить горизонтальное положение, в то время как для остальных моделей допускается любое положение, но также желательно горизонтальное.
При подключении проводов к соответствующим клеммам важно затягивать винты с моментом не более 0,330 Nm (3,3 кгс см),а избегать ударного монтажа куплунгов на электромагнитах и чрезмерной затяжки центрального винта.
Гидрораспределители необходимо хранить в помещениях с хорошей вентиляцией, где температура воздуха не опускается ниже 5°С, а относительная влажность не превышает 70%. Транспортировка гидрораспределителей должна производиться только в закрытых транспортных средствах.
При установке гидрораспределителя и соединении трубопроводов не должно возникать утечек или подсоса воздуха. Для обеспечения надёжной работы гидрораспределителя необходимо использовать чистое минеральное масло с вязкостью 10...400 cSt и температурой в пределах -20...+80°С. Максимальный размер твердых частиц в масле не должен превышать 0,025 мм, а напряжение питания электромагнитов должно колебаться в пределах 5% от номинального значения.
Следует помнить о правилах безопасности и ремонта: запрещается проводить разборку и ремонт гидрораспределителя под давлением и при включенной системе управления. Предохранительные клапаны, которые защищают систему от перегрузок, должны быть настроены на давление не более 32 МПа (320 кгс/см²),а давление в сливной линии "Т" не должно превышать 16 МПа (160 кгс/см²). При разборке и сборке распределителей и электромагнитов необходимо следить за чистотой всех деталей. В случае загрязнения детали и внутреннюю полость гильзы следует тщательно промыть.
Для разборки куплунгов электромагнита нужно отвинтить центральный винт МЗ, а сам процесс разборки куплунга для соединения проводов осуществляется только после снятия этого винта.